d

Realizzazione Centro Intermodale di Iglesias

Sintesi progetto

Nell’ambito di un obiettivo di sviluppo della Città di Iglesias la realizzazione del centro intermodale passeggeri riveste un ruolo di assoluta importanza, in quanto mira a risolvere i problemi della mobilità cittadina con la gestione dei flussi in entrata ed uscita dalla città e con lo smistamento dei flussi interni, potenziando la possibilità di sosta e interscambio con i mezzi pubblici e con altri mezzi alternativi (percorsi ciclopedonali, ecc.). L’area oggetto dell’intervento è situata in un importante snodo per la città di Iglesias, dove confluiscono importanti arterie di accesso e uscita dal centro urbano e la linea ferroviaria di RFI. Nelle immediate vicinanze si situano i principali centri amministrativi (Comune, Agenzia delle Entrate, ecc.) e i luoghi di interesse per la città (piazza Sella e il limite del centro storico si trovano a circa 300 metri). L’area è pertanto riguardata da un intenso volume di traffico e dalla presenza di abitazioni e servizi commerciali.

Nel Centro intermodale è prevista la realizzazione di:

  • un’isola centrale, coperta da una pensilina, per lo stazionamento degli autobus e lo smistamento dei passeggeri;
  • una zona biglietteria, sale d’attesa e servizi per i dipendenti (all’interno dell’edificio esistente in testata, a nord-ovest dell’area);
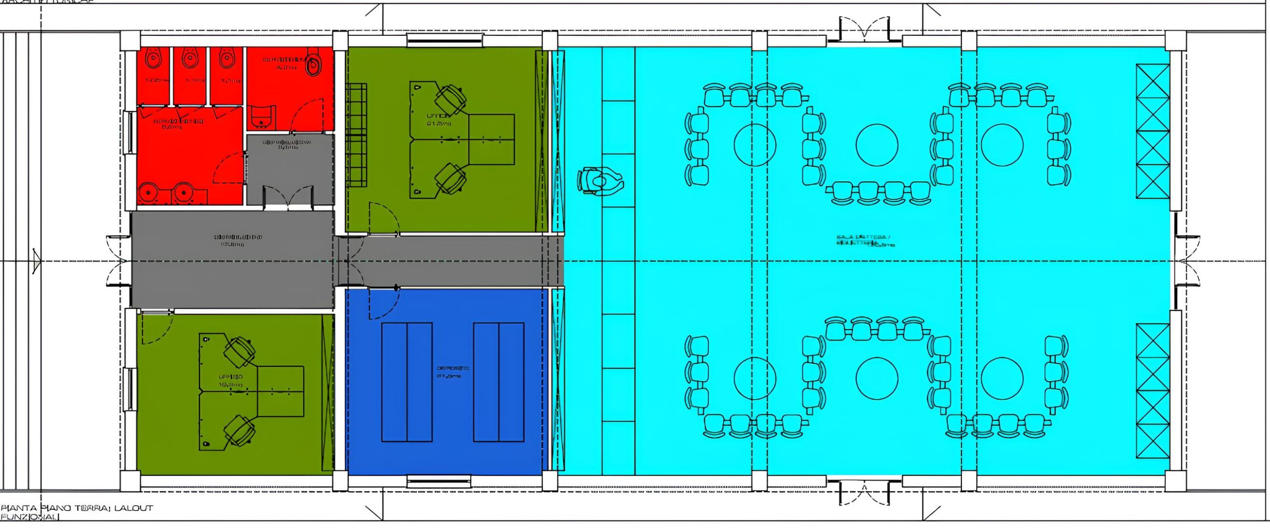
  • una serie di servizi per i passeggeri (deposito bagagli, servizi igienici etc);
  • un parcheggio per le automobili (due livelli di autorimessa e un livello di parcheggio a raso);
  • un chiosco/bar (vicino alla stazione esistente a nord dell’area di intervento);
  • un nuovo accesso pedonale sulla via San Salvatore (con rampe per disabili);
  • una nuova strada di accesso al centro di pertinenza delle autolinee costeggiante l’edificio dell’ex mattatoio

Al momento dei lavori, La stazione degli autobus era costituita da una piattaforma in cemento armato, con superficie superiore ai 2000 m2 (112×30), in cui sono posizionati gli stalli per lo stazionamento, avente dimensioni ciascuno di circa 12×3,5. La piattaforma è rialzata di 20 cm dal piano della carreggiata e si trova allo stesso livello dell’edificio della biglietteria. La pavimentazione stradale prevista nel progetto è in asfalto mentre la piattaforma è stata progettata protetta da una pensilina metallica avente superficie di circa 2.950 m2 (26×111,3) costituita da una successione di portali che funzionano come archi a tre cerniere realizzati con travi reticolari. Le travi sono generate da profili metallici tubolari saldati a formare un reticolo tridimensionale e variabile in funzione degli appoggi. Il passo strutturale è 11 m, l’altezza della pensilina è 6.92 m all’estradosso e 5 m all’intradosso. I pannelli della copertura sono alternativamente trasparenti, opachi (alluminio) o vetrati; il sistema di fissaggio è del tipo nascosto.

È presente anche l’edificio dell’ex magazzino, situato in testata rispetto alla piattaforma degli autobus che da progetto ospiterà la biglietteria e la sala d’attesa. L’edificio misura 25,5×11,04 m ed ha una superficie di 281,5 m2. Si prevede il ripristino delle murature perimetrali, dei pavimenti interni e la predisposizione degli impianti, oltre al ripristino degli infissi e delle finiture interne. L’aspetto esterno dell’edificio si manterrà invariato: il colore della pittura sarà simile a quello originale, il trattamento di travi e modanature, attualmente evidenziate tramite il colore, conserverà questa caratterizzazione. Le pavimentazioni interne saranno conservate utilizzando l’attuale basolato in granito. Verrà sistemato il basamento rialzato sul quale attualmente poggia il fabbricato e reso accessibile tramite una serie di rampe per riconnetterlo alla quota della piattaforma autobus. Il volume è diviso in due spazi, l’attesa/biglietteria che è lasciata a tutta altezza con l’intradosso della copertura a falde a vista e lo spazio per uffici e servizi che avrà un controsoffitto a 3 m di altezza. L’illuminazione prevista per l’attesa/biglietteria è con lampade a sospensione a luce diretta/indiretta con sorgente a scarica o fluorescente. Per le aree uffici e servizi è prevista l’utilizzazione di corpi illuminanti nel controsoffitto 60 x 60 a luce indiretta. Il piccolo volume a nord dell’area di progetto viene ristrutturato e convertito in un chiosco/bar con tavolini all’aperto. Il volume si trova al di sopra di un terrapieno situato ad ovest rispetto all’edificio di stazione. Al momento del progetto la terrazza è accessibile dalla quota banchina attraverso una scala esterna che viene risistemata e resa più funzionale. L’accesso principale alla terrazza avviene tuttavia dal nuovo sistema di rampe che collegano la città (via XX Settembre) con la quota del Centro Intermodale. A metà della discesa le rampe incontrano la quota della terrazza, sulla quale è prevista la realizzazione di un piccolo chiosco/bar all’interno del fabbricato esistente. Il progetto prevede una ristrutturazione intera, saranno predisposti gli impianti e allestito l’interno con una pavimentazione in resina cementizia. Le murature saranno trattate con intonaco e pittura, le strutture, ove necessario saranno consolidate.

Il progetto prevede l’inserimento di nuove attività sulla piattaforma degli autobus, al di sotto della pensilina con la realizzazione di tre volumi (“bolle”) contenenti biglietterie, sale d’attesa, servizi igienici, un’edicola e un bar. Tali strutture misurano ognuna 6 x 18 m, con una superficie di 108 mq ciascuna. I volumi hanno una semplice struttura in muratura che si alterna, nelle parti completamente trasparenti, ad una struttura metallica che sorregge la vetrata a tutta altezza. La struttura è costituita da pilastrini circolari di 12 cm di diametro, il cui passo strutturale è 1,5 m. II rivestimento dei volumi è interamente pensato in lastre vetrate stratificate, anche laddove è prevista la muratura. Vengono montati a diretto contatto con la muratura. La copertura è in pannelli sandwich in alluminio coibentato di spessore 20 cm, con appoggio diretto sulla trave di bordo. Internamente i volumi vengono predisposti con i necessari impianti. E’ prevista la realizzazione di controsoffittature; nelle zone di servizio l’altezza interna è 2,40 m e il controsoffitto è più basso per consentire il passaggio degli impianti (80 cm di luce), mentre negli spazi che ospitano le attività principali l’altezza netta interna è di 2,8 m (con un’altezza libera interna al controsoffitto pari a 40 cm). I controsoffitti sono in pannelli in lamiera microforata 60 x 60 con illuminazione integrata. I pavimenti sono in resina cementizia bianca in tutti gli ambienti. Le pareti interne vengono trattate con pitture a colorazioni neutre (bianco). La struttura di pilastrini metallici circolari che sorregge la vetrata trasparente nelle sale di attesa viene pitturata anch’essa in bianco. La fascia superiore dei volumi vetrati è sempre chiusa con pannelli vetrati opachi sui quali viene riportata l’indicazione della attività ospitata tramite una pellicola adesiva.

Il parcheggio si sviluppa al di sotto della quota strada (via Crocefisso) ed è accessibile dall’angolo tra via Crocefisso e via XX Settembre. Sul tetto del nuovo volume è previsto un parcheggio a raso, realizzato con una superficie asfaltata, in cui sono a disposizione degli utenti 112 posti auto. I due livelli inferiori sono accessibili dallo stesso angolo tramite rampe carrabili. La struttura dell’edificio è costituita da un telaio di travi e pilastri in cemento armato, con passo strutturale di 7,5 m. I due livelli di autorimessa (per un totale di 172 posti auto) hanno ciascuno un’altezza interna di 2,40 m e una superficie utile di 2.672 mq il piano terra e 2.832 mq il primo livello (il piano terra ospita 171 mq destinati ad altre funzioni). All’interno dell’edificio sono previsti i necessari locali tecnici; le uscite di sicurezza sono collocate all’interno di blocchi strutturali. Le uscite escono a quota +177.99 slm, al livello della piattaforma degli autobus. Alla stessa quota degli stalli è previsto l’inserimento di alcune attività di servizio (deposito bagagli, deposito e servizi igienici pubblici) che occupano 171 mq. Il deposito bagagli ha a disposizione una stanza per la relazione con il pubblico, dove è previsto l’allestimento di un desk, e una stanza per lo stoccaggio.

La facciata rivolta a nord, verso l’edificio ex-magazzino, è rivestita con pannelli di lamiera stirata in alluminio montati su telaio metallico. I pannelli misurano 2,9×1 m. Si tratta di una facciata aperta che consente l’areazione naturale dell’autorimessa.

Settore

Pubblico

Importo

€ 4.955.105,60

Categoria
Data
d
Sed ut perspiclatis unde olnis iste errorbe ccusantium lorem ipsum dolor