Studio propedeutico al progetto di fattibilità tecnica ed economica dell’Einstein Telescope Strutture
Opere infrastrutturali per la conservazione, valorizzazione e fruizione della Grotta Verde ad Alghero Ambiente
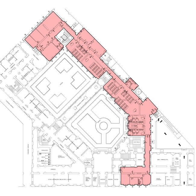
Lavori di riconversione del compendio demaniale per il Nuovo Polo dell’Agenzia delle Entrate Architettura
Realizzazione del sottopasso pedonale e installazione degli ascensori nella linea Messina – Catania Architettura
Consolidamento e messa in sicurezza dei costoni rocciosi del Colle di San Michele a Cagliari Strutture
Prevenzione incendi per recupero area Ex Enel per costruzione di un centro polivalente a Marrubiu Architettura
Sistemazione e allargamento della rotatoria della Strada Provinciale nel tratto Torregrande-Cabras Trasporti
Adeguamento delle strutture del parco Fausto Noce e copertura per la tribuna stadio Angelo Caocci Strutture
Realizzazione di impianti per gli alloggi dei volontari dell’esercito per Fabiani S.p.a. a Bolzano Sicurezza
Riqualificazione urbana e recupero del Centro Storico di Solarussa e restauro di Casa Sanna Architettura
Consulenza di sicurezza per i lavori della variante di Codogno “ex S.S. 234 Cognese” a Lodi Sicurezza
Derivazione delle risorse del Basso Flumendosa e collegamento con il serbatoio sul lago Mulargia Reti
RSPP per un edificio destinato ad albergo e attività commerciali per Fabiani S.p.a. a Dalmine Sicurezza
Studio di fattibilità per il miglioramento dell’accessibilità e OL (Fase 1) della stazione di Ozieri-Chilivani (SS) Architettura
Ristrutturazione della sala settoria dell’ospedale Fatebenefratelli e Oftalmico a Milano Architettura