d

Ristrutturazione poliambulatorio di Via Palermo a Milano

sintesi progetto

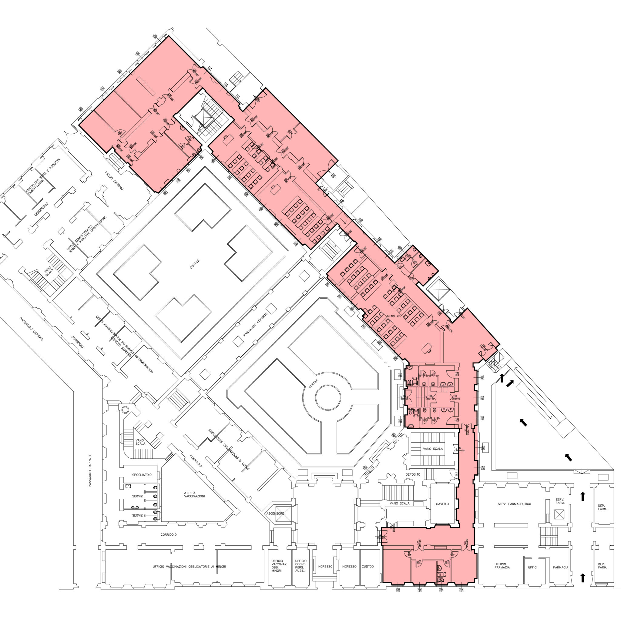
Il progetto consiste nella ristrutturazione e adeguamento alle norme vigenti di un gruppo di locali dell’ospedale Fatebenefratelli e Oftalmico – Corso di Porta Nuova n. 23 – Milano.

 

L’insieme di locali oggetto dell’intervento si trovano al piano terreno del fabbricato compreso tra le Vie Palermo e Statuto, appartenente all’Azienda Ospedaliere menzionata; i lavori di ristrutturazione hanno come obbiettivo quello di cambiare la destinazione d’uso dei locali da poliambulatorio a scuola infermieri.

Settore

Pubblico

Importo

€ 148.683,18

Categoria
Data
d
Sed ut perspiclatis unde olnis iste errorbe ccusantium lorem ipsum dolor