d

Recupero e realizzazione di sei unità immobiliari in via Tuveri a Cagliari

Sintesi progetto

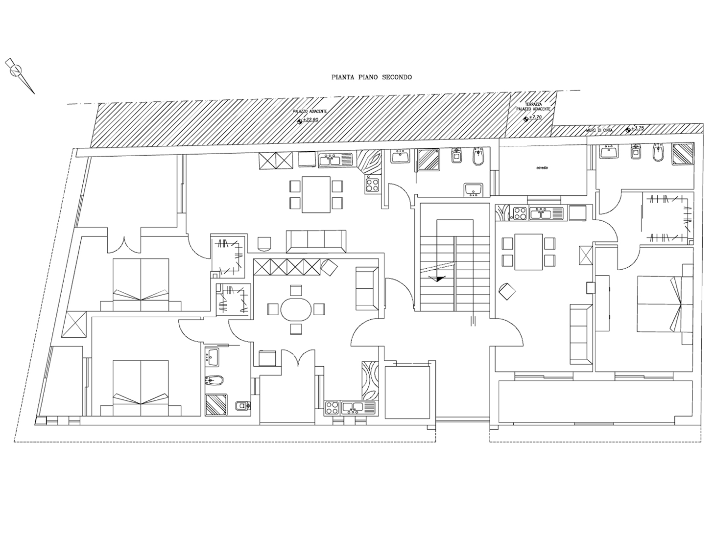
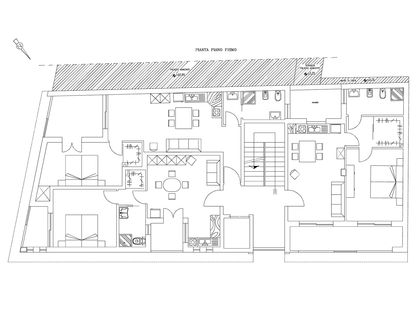
Il progetto di recupero prevede la realizzazione di sei unità immobiliari a destinazione di edilizia residenziale pubblica, distribuite su due piani con sottostante piano parcheggi, a livello sul vico Tuveri, adibito a parcheggi e verde condominiale. L’accesso alle unità abitative avviene attraverso l’unico corpo scala, dotato anche di ascensore, con ingresso principale sul vico Tuveri e due ingressi laterali dal piano parcheggi.

 

L’edificio ha globalmente affaccio su tre lati, e tutte le abitazioni hanno comunque due affacci, al fine di garantire la migliore aerazione ed illuminazione delle stesse.

Gli appartamenti previsti sono  composti di una zona giorno soggiorno-cucina, un bagno ed una stanza da letto doppia, munita di cabina armadio.

Settore

Pubblico

Importo

€ 311.437,53

Categoria
Data
d
Sed ut perspiclatis unde olnis iste errorbe ccusantium lorem ipsum dolor