Il progetto esecutivo riguarda il I stralcio dell’intervento complessivo del Nuovo Polo dell’Agenzia delle Entrate in Via Simeto, Cagliari. In conformità al progetto approvato, le opere del 1° stralcio funzionale si articolano principalmente nella realizzazione parziale del futuro parcheggio pluripiano (CORPO B) e deL 90% delle opere esterne, escluse quelle immediatamente prospicienti al Corpo B. Dello stesso saranno realizzati solo i locali tecnici, il piano terra solo come fondazioni/vespaio e una pergola fotovoltaica per parcheggi. L’intera progettazione nasce dalla collaborazione di diversi progettisti: Corvino + Mulari, Rina, Tecnolav, dfp e l’architetto Gianluca Vosa con la consulenza di esperti di settore.
Il progetto interessa il compendio demaniale ‘ex Magazzini Aeronautica’, situato nel territorio della Regione Autonoma della Sardegna nel comune di Cagliari, alla periferia ovest della città. L’area è inserita nel quartiere di Sant’Avendrace, ai margini dell’antico asse viario un tempo denominato Strada Reale, di ingresso al capoluogo cittadino. L’assetto complessivo della zona si presenta oggi disomogeneo e interessato da numerosi processi di degrado fisico e sociale, ove rimangono isolate architetture storiche ed emergenze monumentali.
L’area oggetto dell’intervento si pone a margine tra il tessuto urbanizzato ed un’ampia area incolta. E’ caratterizzata dalla compresenza di tessuto residenziale e di aree a destinazione terziario/commerciale di media e grande distribuzione. In considerazione della sua posizione è stata rilevata la carenza di spazi collettivi e servizi di intrattenimento. L’area è rilevante soprattutto dal punto di vista archeologico – paesaggistico sia per i ritrovamenti archeologici che per la vicinanza alla Laguna di Santa Gilla.
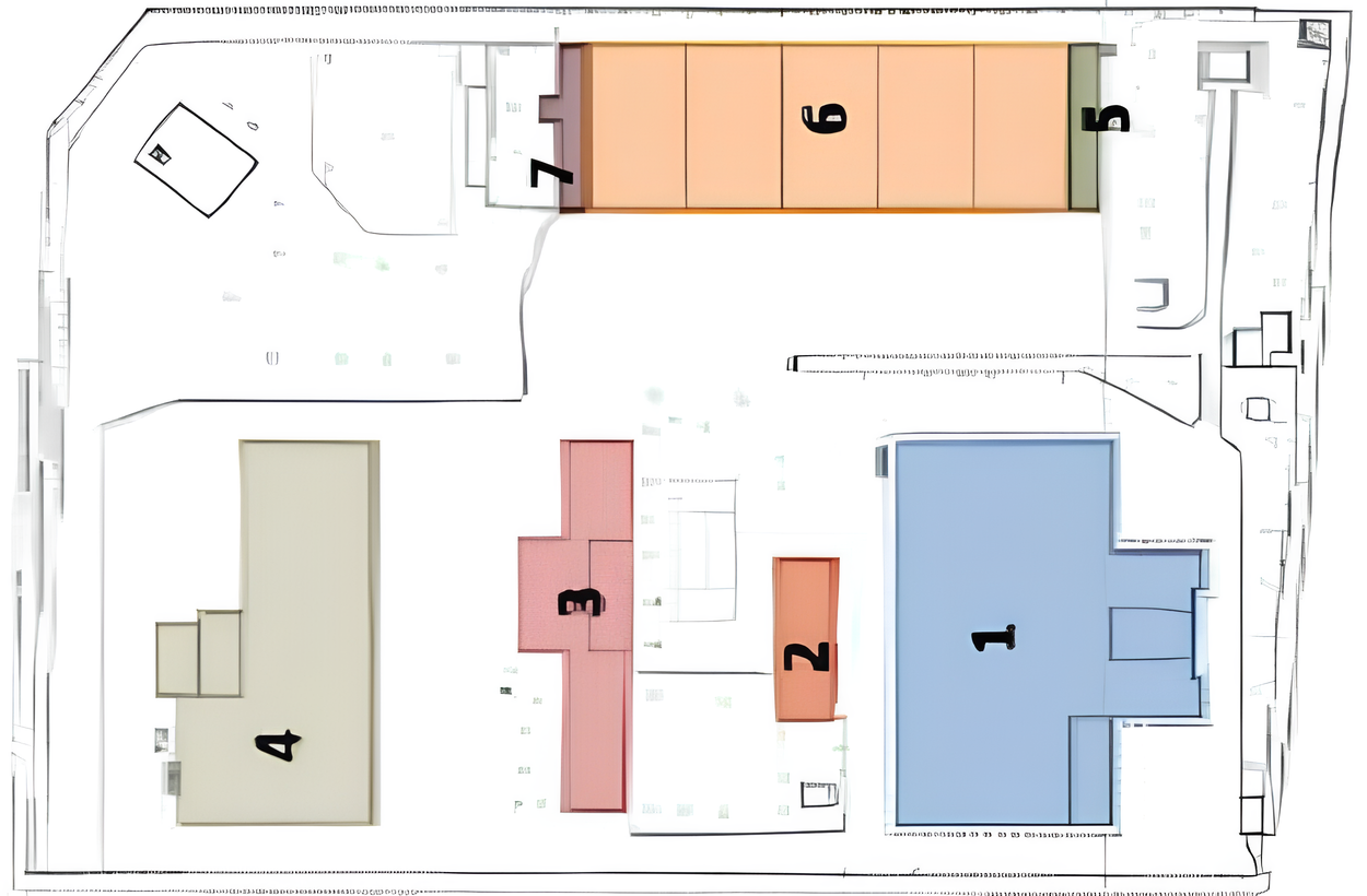
All’interno dell’area, insistono sette corpi di fabbrica principali, alcuni manufatti accessori e locali tecnici ascrivibili a fasi costruttive differenti, la prima delle quali risalente agli anni Quaranta del Novecento. Si tratta di edifici con caratteristiche morfologiche e costruttive diverse, che hanno subito notevoli rimaneggiamenti nel corso del tempo.

| 1 Magazzino – Comando; 2 Mensa e Circolo Ufficiali; 3 Magazzini, Stazione di lavaggio e Truppa; 4 Sede Squadriglia TLC; 5 Alloggio Ufficiali; 6 Magazzini c.d. hangar inglesi; 7 Alloggio Comandante |
Anche le aree all’interno della macroarea di intervento sono di interesse progettuale. Sono caratterizzate da diverse specie arboree e arbustive autoctone e da vegetazione spontanea che, in sede di progetto, sono state mantenute per indirizzare gli interventi sul verde.
In Generale l’impostazione progettuale tiene conto del rapporto con il tessuto urbano ed edilizio circostante, in termini di riconoscibilità ed identità urbana, visibilità, integrazione e sicurezza, anche al fine di qualificare l’intervento dal punto di vista architettonico, con particolare attenzione alle relazioni con il paesaggio aperto e urbano e al rapporto con le preesistenze storico/archeologiche e delle architetture moderne presenti nell’area.
L’idea di progetto, a partire da un giudizio di valore sull’attuale contesto, guarda ad un paesaggio più ampio: legge le confluenze, le contraddizioni, la geografia, per assegnare al progetto un ruolo di “nuova centralità” nel sistema urbano. Al fine di perseguire tale scopo le recinzioni vengono poste in prossimità degli edifici così da conformare uno spazio di piazza fruibile dai cittadini anche nelle ore notturne. Gli spazi pubblici che si vengono a formare sono multifunzionali ossia oltre la funzione di piazza e sono da considerarsi anche zone a verde e parcheggio.
Il progetto paesaggio va a pari passo con il progetto architettonico e si fonda sulla valorizzazione del territorio e delle sue peculiarità come la presenza di edifici di valenza storica-culturale e le presenze archeologiche nel sottosuolo. SI è scelto di sfruttare questa stratificazione per concepire l’area su tre differenti livelli: uno ipogeo, dei resti archeologici; uno in alzato, degli edifici oggetto di intervento e la loro rifunzionalizzazione; e uno intermedio, sul quale agisce il progetto di paesaggio e che si apre ad una possibile esplorazione dello spazio in maniera verticale (dall’alto al basso) oltre che, in quanto passaggio privato e in parte pubblico, alla sua naturale vocazione di “attraversabilità” orizzontale.
Partendo da queste considerazioni la generazione dello spazio esterno parte dalla volontà di salvaguardare i possibili resti archeologici presenti nel sottosuolo; il concept del disegno richiama la maglia preparatoria usata per le indagini archeologiche. Il progetto dello spazio pubblico è contraddistinto da percorsi e accessi costituti da una maglia regolare che poggia sul terreno e permette il flusso veicolare. Le pendenze e raccolta delle acque superficiali sfruttano le pendenze naturali esistenti. Le aree verdi e la vegetazione il cui progetto prevede il mantenimento delle specie arboree esistenti e il potenziamento di alcuni sistemi arborei e arbustivi già presenti.
Per quanto riguarda gli edifici, le scelte architettoniche mirano alla realizzazione di un organismo unitario in cui appaiono riconoscibili le diversità dei singoli edifici. La scelta consapevole è di conservare il sistema strutturale degli edifici esistenti aventi valore storico testimoniale, la demolizione di alcuni edifici in quanto non ritenuti funzionali all’ipotesi progettuale, la realizzazione di un edificio di completamento che inglobi anche uno dei vecchi magazzini e la realizzazione di un parcheggio multipiano rispettando l’area di sedime degli “ Hangar inglesi”.
Le destinazioni d’uso sono cosi distribuite: Il nuovo Corpo A (A1,A2,A3) è costituito dalla struttura del vecchio Magazzino di Comando e ingloba l’area del fabbricato della Mensa che verrà quindi demolito. Ospita la Direzione Provinciale, gli Uffici Territoriali e Ufficio Provinciale Territoriale; Il Corpo B ospita il parcheggio multipiano e sarà realizzato rispettando l’area di sedime dei vecchi Hangar Inglesi e degli Alloggi Ufficiali; Il Corpo C (C1, C2 e C3) è un blocco di completamento del Corpo A attraverso il recupero del fabbricato della Stazione di Lavaggio e Truppa. Ospita la Direzione Regionale, Centro Operativo e Centro Assistenza Multicanale. Nello stesso Corpo è inglobato un blocco denominato Corpo D che ospita gli archivi.
Ciascuno degli edifici, soddisfa complessivamente sia le esigenze richieste dalla Stazione Appaltante sia i requisiti minimi alla normativa in materia edilizia, urbanistica, di abbattimento delle barriere architettoniche, igienico-sanitaria, impiantistica, antincendio, sismica, di contenimento dei consumi energetici e di salute e sicurezza sui luoghi di lavoro.
Le scelte tecniche e tecnologiche adottate sono state adeguate alla natura degli spazi, prevedendo layout distributivi atti a rispondere alle differenti esigenze, spazi di lavoro flessibili e funzionali. Il criterio della flessibilità degli ambienti interni è stato ottenuto ricombinando l’arredo ed utilizzando partizioni verticali utili ad individuare zone più raccolte prevedendo spazi di lavoro più informali ed aree relax. Gli ambienti interni risultano facilmente modulabili anche in virtù dell’organizzazione degli spartiti di facciata dei prospetti principali, caratterizzati da una partitura verticale modulare che alterna elementi trasparenti ed opachi. Ad esclusione di alcune aree soppalcate (corridoi, bagni, ecc.), tutti gli spazi di ufficio sono caratterizzati dagli impianti e dalle maglie strutturali volutamente a vista, di cui quella preesistente in c.a. e quella di nuova realizzazione in acciaio, lasciando completamente leggibile la spazialità dei vecchi edifici militari e l’integrazione della nuova maglia strutturale indipendente, rendendo gli spazi interni chiari e senza sovrascritture.
Strutturalmente è stato necessario intervenire con opere di consolidamento sulle strutture esistenti del Corpo A che si eleva sopra il preesistente. La struttura in Calcestruzzo armato ha rivelato un elevato stato di degrado unito alla modesta qualità e quantità dei materiali utilizzati che ha reso necessario intervenire con delle opere ingenti di rinforzo anche al fine di renderle idonee a possibili sollecitazioni sismiche. I corpi A e C, anche se costituiscono un unico corpo in facciata, strutturalmente sono indipendenti. Il Corpo C in fatti è realizzato con telaio in acciaio e tamponature in laterizio. Il Corpo D sarà parzialmente demolito per l’elevazione di una struttura in calcestruzzo.
Tecnolav s.r.l. si è occupata in particolare delle soluzioni impiantistiche avvalendosi della tecnologia BIM. Nello specifico sono stati studiati gli impianti termotecnici utili a ottenere la migliore condizione di benessere per gli utilizzatori, tra cui l’utilizzo di ventilconvettori con ventilazione meccanica controllata con recupero di calore; pompe di calore aria-acqua e pavimenti radianti. Per quanto riguarda l’impianto elettrico, vista la caratteristica “sensibile” delle attività da svolgere all’interno del complesso, si è scelto di impiegare un sistema di alimentazione elettrica tale da garantire un elevato livello di stabilità e di continuità di servizio. L’alimentazione elettrica del complesso è derivata da linee in Media Tensione; l’architettura di sistema è del tipo “ad anello chiuso” con due fonti di alimentazione indipendenti, ciascuna delle quali è in grado di sopperire all’intero fabbisogno di energia necessario all’impianto.
Pubblico
€ 35.000.000,00
Corvino+Multinari S.r.l.; DFP Engineering; Arch. Vosa G.
09/10/2024